0.00 грн.
Оформить заказ- Производитель: ЭВОЛЮЦИОНЕР™
- Модель: ЛСУ-1270х2
- Наличие: Есть в наличии
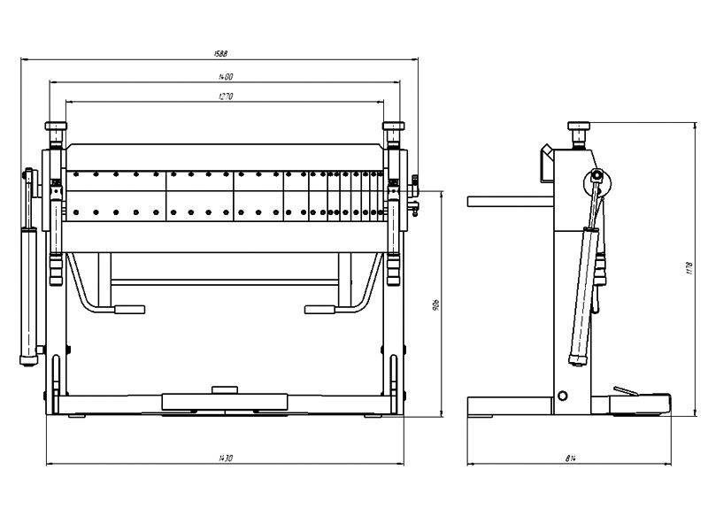
Вес: 371кг
Размер (ДхШхВ): 160см x 85см x 120см
- Обзор товара
- Характеристики
- Видео
- Отзывов (0)
- Похожие товары
Сегментный листогибочный станок ЛСУ-1270х2 предназначен для гибки листового металла длиной до 1270 мм и толщиной до 2мм. Отличием данного листогиба от других моделей является наличие не только верхней сегментной балки и поворотного сегментного фартука, но и сегментной нижней части, которая дает возможность изготавливать достаточно сложные изделия с обратными гибами. Данная дополнительная сегментная третья губка, как ее еще называют, существенно расширяет функционал станка и расширяет ассортимент возможных изготавливаемых на листогибе изделий. Для удобства работы на станке одному человеку предусмотрен педальный прижим, который освобождает руки оператора в процессе работы на станке.
Стандартная комплектация сегментного листогибочного станка ЛСУ
В стандартном варианте комплектации сегментный листогиб ЛСУ-1270 мм комплектуется тремя сегментными балками. Высота верхних сегментов составляет 30мм, высота подъема верхней балки 40мм. Так же в стандартном варианте поставки станок оснащается четырехпозиционным ограничителем угломера для более удобного изготовления изделий с одинаковыми углами гиба и сегментами с боковыми вырезами для гибки кассет и коробов с внутренними загибами:

Дополнительная комплектация станка
В качестве дополнительной комплектации сегментный листогиб ЛСУ-1270х2 может оснащаться:
- увеличенными до 45мм верхними сегментами;
- термически обработанными сегментами;
- отрезным роликовым ножом с направляющей для резки листового металла толщиной до 0.8мм
- многофункциональным приемным столом, для более удобной работы на станке и изготовления изделий одинаковых размеров
- Под заказ возможно изготовить верхнюю сегментную балку в форме «сапожка» высотой 100-120мм

Данный сегментный листогиб ЛСУ-1270х2 с тремя сегментными балками будет идеальным решением для тех предприятий, которые занимаются изготовлением фасадных кассет и коробов различной сложности, электрических ящиков и ящиков для различного рода аппаратуры, предприятиям основной сферой деятельности которых является изготовление и монтаж систем вентиляции и кондиционирования, строительным предприятиям и любым другим чья деятельность связана с листовым металлом и его обработкой.
Для более детальной информации по данному оборудованию просьба связаться с нашим отделом продаж
Нет отзывов о данном товаре.
Нет вопросов о данном товаре, станьте первым и задайте свой вопрос.